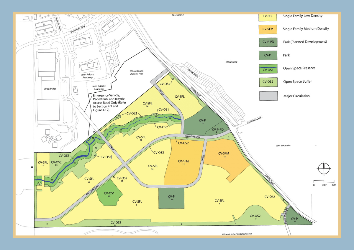
763 homes, 14 acres of parks, and years in the making — Creekside Village goes before the county.
A citizens’ group affiliated with Sacramento Advocates for Rail and Transit and the Sacramento Area Bicycle Advocates is pushing to place a half-cent sales tax on the November 2026 ballot that would generate about $75 million a year for transportation improvements within Sacramento city limits. The proposal, officially titled the
More than two decades after planners first mapped out a new expressway for south Placer County, the project is finally set to break ground. The Placer County Board of Supervisors unanimously awarded a $61.6 million construction contract on Tuesday, formally launching the first phase of the Placer Parkway. The
Sacramento city planners and design commissioners are weighing a zoning overhaul that could trade neighborhood “character” for the “missing middle” housing density needed to curb a regional housing shortage. At a March 26 workshop, the Sacramento Planning and Design Commission reviewed proposed changes to the city’s zoning code as